Projectos > Aproveitamento Hidroeléctrico do Alvito
Aproveitamento Hidroeléctrico do Alvito

CLIENTE
EDIA - Empresa de Desenvolvimento e Infra-Estruturas do Alqueva
DESCRIÇÃO
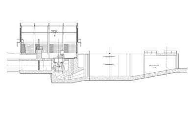
Esta central aproveita o desnível geométrico entre a albufeira do Alvito e o canal de adução Alvito-Pisão, da rede primária de rega. O volume anual médio turbinado é de 512 hm3 e a produção anual média é estimada em cerca de 8 GWh. A central hidroeléctrica será equipada com dois grupos turbina-gerador (turbina Kaplan de eixo vertical) com uma potência instalada de 3700 kVA e derivará um caudal máximo de 40,6 m3/s com uma queda máxima de cerca de 10 m.
ANO
2005
Aproveitamentos Hidroeléctricos | outros projectos


