Projects > Sapeira Bridge
Sapeira Bridge

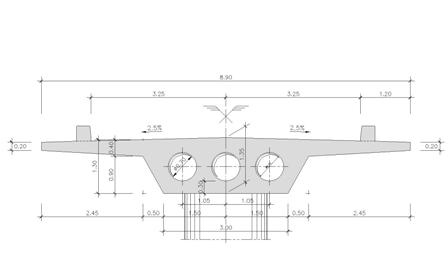
DESCRIPTION
Tipo - Ponte em betão pré-esforçado
Extensão total - 85 m
Altura máxima - 15m
Largura do tabuleiro - 9m
YEAR
2009
Bridges, Tunnels and Buildings | outros projectos


